GW4-30kv(40.5kv) Outdoor High Voltage Disconnector
This series of high-voltage isolating switches is widely used in photovoltaic and wind power stations, substations, and SVG static reactive power generator equipment. The product boasts excellent electrical and mechanical performance, making it an upgraded option for current 10-35kV outdoor switches.
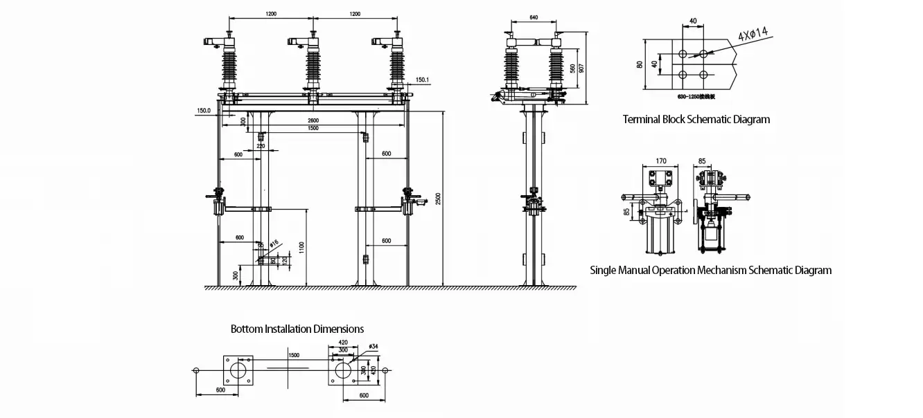
The switch features a grounding knife that effectively prevents misoperations such as 'live grounding and grounding switch closing,' eliminating the need for separate grounding lines for operators.
It can be flexibly configured for single-side grounding, double-side grounding, manual mechanisms, electric mechanisms, and integrated lightning arresters. The switch includes mechanical interlocks to prevent misoperations and can be equipped with external electromagnetic locks to interlock between the main knife and grounding knife, as well as between the isolating switch and circuit breaker.
Our company's "One-Button Sequential Control" optical sensor can be added to enable unmanned operation and dual confirmation of the position.
|
Model
|
Rated voltage(kv)
|
Rated current(A)
|
Thermal Stability Current ( kA/4s )
|
Dynamic Stabilization Current (KA)
|
Power Frequency Withstand Voltage(kV/60s)
|
Lightning impulse withstand voltage (kV)
|
||
|
GW4 |
40.5 |
630 |
20 |
50 |
95 |
118 |
185 |
215 |
|
40.5 |
1250 |
31.5 |
80 |
|||||
|
40.5 |
1600 |
31.5 |
80 |
|||||
|
40.5 |
2000 |
40 |
100 |
|||||
GW4 10kV(12kV) outdoor high voltage electrical disconnector
This GW4 series of outdoor high-voltage electrical ...
See More
GW4-72.5 Outdoor High Voltage Disconnect Switch
This series of high-voltage isolating switches is widely ...
See More
GW9-12/40.5 Outdoor Medium Voltage Disconnector
This series of outdoor medium-voltage isolating switches is ...
See More
GW5 Outdoor High Voltage Disconnector Switches
This series of high-voltage disconnector switches is ...
See MoreProduct Search
Here you can choose products online and find the products you want more quickly and accurately.
Customized Consultation
If you want to customize a product, please contact us, and our team is more than happy to assist you.
Product Procurement
If you want to purchase a product, please contact us and we will provide you with product information and a quotation.
Chennuo Electric Technology Group Co., Ltd
Tel:+86 19303791130
Email:sales@chennuojt.com
Add:No. 9 Duyu Street, Luolong District, Luoyang City, Henan Province, China