GW4 10kV(12kV) outdoor high voltage electrical disconnector
This GW4 series of outdoor high-voltage electrical disconnector is designed for three-phase AC 50Hz outdoor electrical equipment. It is suitable for use in outdoor power systems of power plants, substations, and large industrial enterprises, allowing for switching high-voltage lines under no-load conditions and providing electrical isolation between the high-voltage busbars, circuit breakers, and energized high-voltage lines during maintenance. It features safety, reliability, lightweight operation, and flexibility.
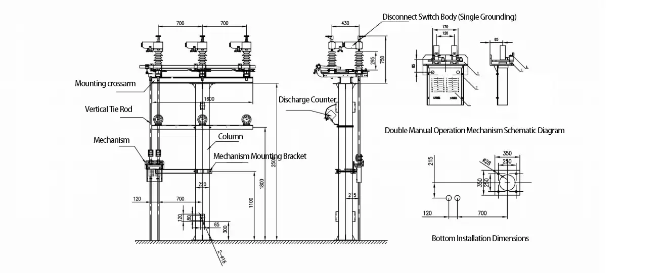
The switch is a single-pole double-column horizontal rotation structure, and the three-pole group can be used together, and it can also be used as a single pole. The single pole of the disconnector is composed of chassis, bearing seat, porcelain bottle, conductive main circuit, and mechanical connecting rod. The three poles of the isolation switch are connected into groups with joints, linkage rods, pipe joints, pivot pins, steel pipes, and operating mechanisms.
A grounding switch can be installed at one or both ends of the chassis of the isolation switch. The grounding switch at both ends of the isolation switch is controlled by the operating mechanism interlocked, so that the isolation switch and the grounding switch can realize the anti-misoperation operation in the order of main division - ground closure - ground division - main closure.
Base frame: It is composed of hot-rolled steel channel, with bearing seats installed at both ends of the base frame, and two deep groove ball bearings are built in to ensure the flexible rotation of shaft assembly.
Pillar porcelain bottle: Stain-resistant porcelain bottle (pollution grade IV) is adopted, and each pole isolation switch is equipped with two pillar porcelain bottles erected and installed on the shaft assembly, and the upper end of the bottle is fixed with a conductive main circuit.
Conductive main circuit: It is composed of outlet terminals, soft connections, contact arms, contacts and contact finger assembly, and the conductive circuit has undergone special oxidation and anti-corrosion treatment, with excellent conductivity and high anti-corrosion level, and is suitable for various complex installation environments.
Mechanical linkage: The switch is operated by the operating mechanism through the operating shaft installed at the bottom of the base, which drives the strut post insulator to rotate 90 degrees, and the linkage link drives the three-pole linkage to realize the opening and closing of the switch. The grounding switch is driven by the operating shaft to drive the ground knife lever to drive the ground knife, and rotate up (or down) at a certain angle to complete the opening and closing.
Operating mechanism: The operating mechanism has manual type CS17-I/II/III (respectively equipped with non-grounding, single grounding, double grounding, with mechanical locking) and electric CJ6 series (can be flexibly matched to achieve single electric, electric + manual, electric + electric operation mode).
|
Model |
Rated voltage (kV) |
Rated Current (A) |
Thermal current (kA/4s) |
Dynamic current (kA) |
Power Frequency Withstand Voltage(KV/60s) |
Lightning impulse withstand voltage (KV) |
||
|
Interphase/Ground |
Fracture |
Interphase/Ground |
Fracture |
|||||
|
GW4 |
12 |
630 |
20 |
50 |
42 |
48 |
75 |
85 |
|
12 |
1250 |
31.5 |
80 |
|||||
|
12 |
1600 |
31.5 |
80 |
|||||
|
12 |
2000 |
40 |
100 |
|||||
Note: High-altitude areas are corrected according to the altitude coefficient
Product Application Scope:
a. Altitude: Standard type ≤2000m, plateau type ≤4000m
b. Ice thickness <10mm
c. Wind pressure ≤700Pa
d. Seismic intensity <8 degrees
e. Ambient air temperature: ±40℃
f. Pollution level: IV
g. Corrosion resistance level: Standard C3, special areas C4
h. Installation sites must be free of flammable and explosive materials, explosion hazards, chemical corrosion, and severe vibrations.
GW4-72.5 Outdoor High Voltage Disconnect Switch
This series of high-voltage isolating switches is widely ...
See More
GW4-30kv(40.5kv) Outdoor High Voltage Disconnector
This series of high-voltage isolating switches is widely ...
See More
GW9-12/40.5 Outdoor Medium Voltage Disconnector
This series of outdoor medium-voltage isolating switches is ...
See More
GW5 Outdoor High Voltage Disconnector Switches
This series of high-voltage disconnector switches is ...
See MoreProduct Search
Here you can choose products online and find the products you want more quickly and accurately.
Customized Consultation
If you want to customize a product, please contact us, and our team is more than happy to assist you.
Product Procurement
If you want to purchase a product, please contact us and we will provide you with product information and a quotation.
Chennuo Electric Technology Group Co., Ltd
Tel:+86 19303791130
Email:sales@chennuojt.com
Add:No. 9 Duyu Street, Luolong District, Luoyang City, Henan Province, China